Агаршева Любовь Алексеевна (RU)
Агаршева Любовь Алексеевна (RU) является правообладателем следующих патентов:

Привод двигательный малогабаритный
Изобретение относится к области электрифицированного железнодорожного транспорта и направлено на усовершенствование устройств, предназначенных для приведения в действие различных исполнительных элементов, и может быть использовано, главным образом, для управления разъединителями контактной сети электрифицированных железных дорог. Привод содержит корпус, двигатель, связанный через механический пре...
2423264
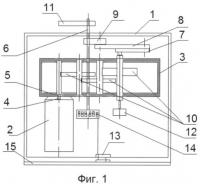
Привод двигательный малогабаритный
Изобретение относится к устройствам для включения и выключения питания отдельных участков рельсового пути. Привод двигательный малогабаритный содержит корпус, в котором размещены мотор-редуктор, подключенный к выходному валу двигателя своим входным валом, а выходным валом - к приводному элементу разъединителя контактных сетей, и переключатель направления вращения привода. Мотор-редуктор выполнен...
2551695