Аналоговый счислитель координат
Иллюстрации
Показать всеРеферат
296I30
ОПИСАНИЕ
ИЗОЬГЕт ЕНИЯ
К азтОГСКОМЬ СВИДИтЕЛЬСтю
Союз Советских
Социалистических
Республик
Зависимое от авт. свидетельства «¹
Заявлено 17.Ч1!.1969 (№ 1348906, 26-9) с присоединением заявки №
Приоритет
Опубликовано 12.ll.1971. Б1оллстень «¹ 8
Дата опубликования описания 9.!1 .!97!
ills 6 С6д 7/78
Комитет по делам изобретений и открытий при Совете Министров
СССР
УДК 681.4.001.57 (088.8) flAT:...:;<б lëи i е,.„„:
А. Д. Матююенко, В. Н. Адаыченко н В. M. Рыжей
Авторы изобретения
Заявитель
АНАЛОГОВЫЙ СЧИСЛИТЕЛЬ КООРДИНАТ
Изобретение относится к области радиотехники и может быть использовано в вычислительных устройствах, предназначенных для навигационных вычислений при сопряжении автономных навигационных приборов с гиперболическими навигационными системами.
Известны аналоговые счислители координат, работающие от автономных датчиков пути и курса, которые на выходе дают прямоугольные координаты подвижного объекта.
При совместном использовании таких счислителей с бортовой аппаратурой разностнодальномерных радионавигационных систем (PHC) требуется преобразование прямоугольных координат в гиперболические.
С целью определения гиперболических координат с высокой надежностью по входным данным в виде курса подвижного объекта и пройденного им пути предлагаемый аналоговый счислитель имеет несколько (по числу станций радионавигационной системы) индентичных каналов, каждый из которых содержит дифференциал, связывающий входной сигнал курса с ручкой и шкалой установки начального курса и с одним из входов синусного и косинусного механизмов, на вторые входы которых поданы сигналы, соответствующие пройденному объектом пути; суммирующий редуктор со входом, который может быть подключен либо к выходу косинусного механизма, либо к ручке начальной установки пути, и с выходом, соединенным со шкалой установки начального пути и с одним из входов редуктора с переменным коэффициентом передачи. На другой вход этого редуктора подан сигнал с выхода синусного механизма. Выход редуктора соединен с одним из входов дифференциала. Выходы суммирующих редукторов всех каналов соединены между собой
10 через дифференциалы, имеющие шкалы и ручки начальной установки гиперболических координат.
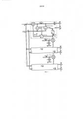
На фиг. 1 изображена схема предлагаемого аналогового счислителя из трех каналов;
1б на фнг. 2 — принцип получения координа-. аналоговым счислителем в прямоугольной и гиперболической системах.
Аналоговьш счислнтель содержит три идентичных канала 1, 2 и 8, каждый из которых
20 состоит из дифференциала 4, синусного механизма 5, косинусного механизма 6, суммирующего редуктора 7, редуктора 8 с переменным коэффициентом передачи.
Выходы суммирующих редукторов всех ка25 íàлов соединены между собой через дифференциалы 9, имеющие шкалы 10 и ручки 11 начальной установки гиперболических координат. На выходе суммирующего редуктора имеется шкала 12 установкп начального пу30 ти, 296130
10
20
Вход суммирующего редуктора 7 может быть подключен к выходу косинусного механизма 6, либо к ручке 18 начальной установки пути (на!альных значений расстояний до станций Р1-1С) .
Дисрферснциаl 4 соединен со входами синусного 5 н «осинусного 6 механизмов, со шкалой 14 и ручкой 15 установки начального курсово! о угла.
Каналы 1, 2 и 8 работают идентично. I(a» дый капал вы исляет расстояние до одной из трех станций PI-IC и в каждый из них ввоДптс!1 НРОЙДСННЫЙ Г>ОДВИжНЫ1>!И ООЪЕКТОМ путь 11 значе1ше курса в виде углов поворота входных валов.
Входной сигнал курса, снимаемый обычно с гироскопического датчика курса в виде курсового угла !х подви?кно"o объекта, поступает на ьход 16. Сигнал, соответствующий прираи:сншо и пройденного объектом пути, от датчика пути поступает на вход 17, В начальной то !ке mi маршрута на шкале
14 ручкой 15 вводится значение курсового угла с.; (относительно направления на станцию
А), а ручкой 18 на шкале 12 — начальное значение ;! расстояния дo станции А.
Для 11о !у>!ени!! гиперболических координат необходимо иметь действительное расстояние I0 станшш Л, т. е. S;>.
Коорд1ната S равна 5;> на шкале счислитсля прямоугольных координат, если в процессе движения непрерывно поворачивать систему «оорд1шат 5У и по прибытии в точку и» развернуть ее на угол Р. Для этого необходимо непрерывно вычислять угол Р и вводить eio i> «ачестве коррекции в курсовой
Угол аь I Рн этом а,. =с ; — P.
После уста!>ов«и начальных значений с .! и
S, и после начала движения в узел поступа1от приращения пути Л5 от датчика пути и значения курсового угла от гирокурсоу«азателя.
На выходе синусного механизма 5 получают ЛУ=,$ в1п ;.
На выходе «осинусного механизма 6 имеют
Л5=Л$ сов!х!.
Редуктор 7 суммирует приращение рас>>
СТОЕ!НН1! 5; =5!!+ Л5.
Рсзультат суммирования поступает на редуктор 8, в котором устанавливает коэффициент псредачи К;= — S;. На выходе редуктора
ЛY
8 получают рт
Полу leiiiloc значение угла р при помощи дифференциала 4 вычитается (складывается) из Угла ссь нРи э;o:>»Ic!IÐOÐы>.ноосУществЯется разворот снстс >11>l координат 5У на угол р.
Такими образом, на выходе канала l на шкале 12 непрерывно получают действительное расстояние до станции А.
1(аналы 2 и 8, дсиствуя аналогично, вырабатыьают рассто;пшя 5.;, и S;2 до второй и третьей передающих станций РНС.
Выходные данныс с каналов IIOCTyiiaioT»a дифференциалы 9, которые вырабатывают разности расс! о п>ий (гипер боли !еские координаты) S! — 5;1, 5п — 5;q.
Полученные да1шые гиперболических координат постуна1от на шкалы 10.
Предмет изобретения
Лналоговый счнслитсль координат для совместного использования бортовой аппаратуры разностпо-дальномерных радионавигационных систем с автоном:Ii>ILIH средствами навигации, включ ающии IE себя синуспый и косинусный механизмы, сум:>!иру!Ощий редуктор, ручку и шкалу на>!альпой установки курса, Отлича!ouIuuc.I тем, »ro, с целью определения гиперболических «оординат с высо«ои надежностью по входным данным курса подвижного объекта и пройденного им пути, входные сигналы поданы на несколько, но числу станций радионавигационног системы, идентичных каналов, каждый из которых содержит дифференциал, связывающий входной сигнал курса с ручкой и шкалой установки начального курса и с одни..! из входов синусного и косинусного механизмов, яа вторые входы которых поданы непосредственно сигналы, соответствующие пройдс1шому об.ьектом пути, суммирующий
Р,.!? I> .ToP co iixogoi>i> 1.ОтоРый >>io?1>cT oi>ITI> Iioli,ключен либо к выходу косинусного механизма, либо к ручке начальной установки пути, и с выходом, соединенным со шкалой установки начального пути и с одним из входов редуктора с нерсмс1шым коэффициентом передачи, на дру1ой вход которого подан сигнал с выхода синусного механизма, а выход редуктора соединен с одним из входов упомянутого дифференциала, причем выходы суммирующих редукторов всех каналов соединены между собой через дифференциалы, имеющие шкалы и ручки начальной установки гиперболических координат.
9ие 2
Составитель М. Порфирова
Редактор Т. И. Морозова Техред 3. Н. Тараненко Корректор В. И. Жолудева
Заказ 782/! Изд. № 334 Тираж 473 Подписное
ЦНИИПИ Комитета по делам изобретений и открытий при Совете Министров СССР
Москва, К-35, Раушская наб., д. 4/5
Типография, пр. Сапунова, 2



