Гибочный штамп для изготовления деталей сложной формы из листовых заготовок

Иллюстрации

Показать все

Реферат

 

ОП ИСАНИЕ

ИЗОБРЕТЕН ИЯ

К АВТОРСКОМУ СВИДЕТЕЛЬСТВУ

1 (ii> 925486

Союз Советских

Социалистичес,ких

Республик (6i) Дополнительное к авт. санд-ву-(22) Заявлено 16.09.80 (21) 2982038,, 25-27 (51)М.1;л.з В 21 0 35/ОО

B 21 D 22/02

В 21 D 5/01 с присоединением заявкп— (23) Приорнтет— (43) Опубликовано 07.05.82. Бюл,летень М 17 (45) Дата опубликования описания 07.05.82

Государствоииый комитет

СССР

66 делам изооретеиий и открытий (53) УДК 621.981.1.07 (088.8) (72) Автор изобретения (71) Заявитель

Я. К. Кирилич

Кременчугский ордена Ленина автомобильный завод им. 50-летия Советской Украины (54) ГИБОЧНЫЙ ШТАМП ДЛЯ ИЗГОТОВЛЕНИЯ

ДЕТАЛЕЙ СЛОЖНОЙ ФОРМЫ ИЗ ЛИСТОВЫХ

ЗАГОТОВОК

Изобретение относится к области обработки металлов .давлением, в частности к конструкции гибочных штампов для изготовления деталей сложной формы из листовых заготовок.

Наиболее .близким по технической сущности и достигаемому эффекту к предложенному является гибочный штамп для изготовления деталей сложной формы из листовых заготовок, содержащий закрепленный на одной из плит штампа пуансон и смонтировакные на другой плите матрицу и выталкиватель, размещенный в направляющем отверстии и выполненный составным из наружной и связанной с буфером внутренней частей (1).

Однако этот штамп имеет существенные недостатки.

Необходимость создания для наружной части выталкивателя самостоятельного буфера, служащего для отгибки сторон заготовки, усложняет конструкцию штампа и увеличивает его габариты по закрытой высоте, что вызывает технологически неоправданную необходимость применения более мощного оборудования, имеющего большую закрытую высоту.

При большой длине отгибки наружных сторон и толщике металла более 0,5 мм, не представляется возможным набрать необходимое усилие пружин, которое требуется для отгибки полок изделия, что приводит к необходимости производить гибку деталей сложных форм за несколь5 ко переходов.

Для деталей сложных форм, требую цих перегибов наружных сторон, не представляется возможным осуществить пружинами такой перегиб, так как пружины обеспечивают лишь ограниченный ход наружкой части выталкивателя и, кроме того, с увеличением хода пружин падает их усилие, что, опять-таки, не позволяет осуществить подги бку наружных сторон деталей сложных форм.

Целью изобретения является уменьшение закрытой высоты штампа и обеспечение возможности получения деталей сложной формы за один переход.

С этой целью в гибочном штампе, содержащем закрепленный на одной из плит пуансон и смонтированные на другой плите матрицу и выталкиватель, размещенный в направляющем отверстии и выполненный составным из наружной и связанной с буфером внутренней властей, в наружной части выталкивателя выполнены сквозные направляющие пазы, перпендикулярные продольной оси штампа, на боковой поз0 верхности внутренней части выталкивате925486

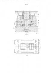
30 ля и поверхности, ограничивающей направляющее отверстие, выполнены карманы, ограниченные каждый со стороны, обра!ценной к буферу, клиновой поверхностью, а штамп снабжен ползушками-фиксаторами, размещенными в пазах наружной части выталкивателя и имеющими двусторонние скосы, последовательно взаимодействующие с клиновыми поверхностями карманов направляющего отверстия и внугренней части выталкивателя, На фиг. 1 показан общий вид штампа в период окончания г@бк!! изделия; на фиг. 2 — общий вид штампа в плане; на фиг. 3 — общий вид штампа в исходном положении.

На верхней плите 1 штампа закреплен пуансон 2. На нижней плите 3 смонтированы матрица 4 и выталкиватель, состоящий из вну1ренней 5 и наружной 6 частей. Внутренняя часть 6 выталкивателя связана посредством толкателя 7 с буфером пресса (на чертеже не изображен).

В нижней плите 3 установлены планки 8, оформляющие направляющее отверстие для выталкивателя и выполненные q карманами 9, ограниченными со стороны, обращенной к буферу пресса, клиновыми поверхностями 10. На боковой поверхности внутренней части 5 выталкииателя выполнены карманы 11, аналогичные карманам

9. В наружной части б выталкивателя выполнены перпендикулярные продольной оси штампа пазы, в которых размещены пол зушки-фиксаторы 12 с двухсторонними скосами 13 и 14. На матрице 5 закреплены трафаретки 15 для фиксации заготовки 16.

Штамп работает следующим образом.

В исходном положении (фиг. 3) обе части 5 и 6 выталкивателя находятся в крайнем верхнем положении. Заготовку 16 укладывают на торцовые поверхности матрицы 4 и внутренней части 5 выталкивателя. При опускании вниз пуансона 2 на величину, соответствующую первому переходу гибки. внутренняя часть 5 выталкивателя опускается на такую же величину, а ее карманы 11 размещаются напротив ползушек-фиксаторов 12. При дальнейшем опускании вниз гибочного пуансона 2 и воздействии его на рабочие поверхности наружной части 6 выталкивателя последняя опускается вниз вместе с внутренней частью 5, происходит окончательная гибка. Одновременно ползушки-фиксаторы 12 под воздействием клиновых поверхностей

10 карманов 9 на ск осы 13 заходят в карманы 11 внутренней части 5 выталкивателя. Заканчивается процесс гибки в момент жесткого касания наружной 6 и внутренней 5 частей выталкивателя нижней плиты 3 штампа (фиг. 1).

60 б5

После 3!!!!еDI. с!!!(я !!; о!гесс; !!Ок! . ;:бочный пуансон 2 с верхней плитой 1 поднимается вверх.

При этом внутренняя часть 5 выталкивателя, поджимаемая буфером пресса, начинает подниматься вверх, увлекая за собой наружную часть 6, заклиненну!о ползушками-фиксаторами 12.

Поднимаясь вверх, наружная 6 и внутренняя 5 части выталкивателя выталкивают готовое изделие из матрицы 4, а ползунки-фиксаторы 12 в момент окончания процесса выталкивания изделия перемещаются под действием клиновых поверхностей карманов 11 внутренней части 5 выталкивателя в карманы 9 планок 8.

При дальнейшем воздействии буфера пресса на внутреннюю часть 5 выталкивателя наружная часть 6 его останавливается, а внутренняя часть 5 продолжает движение вверх всле!дствие перемещения ползушек-фиксаторов 12 в карманы 9 планок

8. Готовая деталь, поднятая на уровень торца матрицы 4, удаляется в тару.

Применение предлагаемого штампа позволит обеспечить высококачественную гибку изделий сложной формы с большой глубиной гибки, и кроме того, увеличить производительность труда за счет выполнения сложной гибки в одном штампе.

Формула изобретения

Гибочный штамп,для изготовления деталей сложной формы из листовых заготовок, содержащий закрепленный на одной из плит пуансон и смонтированные на другой плите матрицу и выталкиватель, размещенный в направляющем отверстии и выполненный составным из наружной и связанной с буфером внутренней частей, отли ч ающи и ся тем, что, с целью уменьшения закрытой высоты штампа и обеспечения возможности получения деталей сложной формы за один переход, в наружной части выталкивателя выполнены сквозные направляющие пазы, перпендикулярные продольной оси штампа, на боковой поверхности внутренней части выталкивателя и поверхности, ограничивающей направляющее отверстие, выполнены карманы, ограниченные каждый со стороны, обращенной к буферу клиновой поверхностью, а штамп снабжен ползушкамификсаторами, размещенными в пазах наружной части выталкивателя и имеющими двусторонние скосы, последовательно взаимодействующие с клиновыми поверхностями карманов направляющего отверстия и внутренней части выталкивателя.

Источник информации, принятый во внимание при экспертизе: ! Смирнов-Аляев Т. A. и Вайнтрауб

Л. А. Холодная штамповка в приборостро ении, M. — Л.. 1963, с. 325, рис. 178 (прототип).

925486

Составитель А. Городнова.

Техред А, Камышникова Корректор И. Осиповская

Редактор Н. Коляда

Тип. Харьк. фнл. пред. «Патент»

Заказ 410/332 Изд. № 140 Тираж 842 Подписное

НПО сПоиск» Государственного комитета СССР по делам изобретений и открытий

113035, Москва, Ж-35, Раушская иаб., д. 4/5