Машина для заготовки двухслойных упаковок под расфасованный сахар рафинад

Иллюстрации

Показать все

Реферат

 

№ ggi<6

Класс 54(1, 9„, 54h Зев

I

) !

СССР

ОПИСАНИЕ ИЗОБРЕТЕНИЯ

К АВТОРСКОМУ СВИДЕТЕЛЬСТВУ

И. И. Роев

МАШИНА ДЛЯ ЗАГОТОВКИ ДВУХСЛОЙНЫХ УПАКОВОК ПОД

РАСФАСОВАНИЫИ САХАР-РАФИНАД

3!))н)лен!) 18 с нтипрн 1958 г.:)<) ¹ 25 448982 в <Чнннстерстно нро»н явленности продовольственных товаров СССР ()пуоснн<ов()но v. «15)о))е)стене изоорстений» ¹ 12 вн 1Р54 г.

Пр(. д !к. том изоорст(иия явля(I(я машина л,и заготовки двухслойных упаковок под расфасовяиный сахар-рафиIГЯД, Сняо?К(.ИН351:Х!Ехсн!ИЗ?

И(

По сравнении с известными предлагаемая маши(ря имеет меньшие габаритные рязм(ры и более простую копструкци10.

Особенность машины закл10яастся в

ToM) что мехян?!Зм д. lя 1!(. рскладки 0(l:Iblx и синих форматок Выполнен в виде

ДВУХ СМСЖ!10 < СТЯИОВЛЕНПЬ!Х Н ЛИНИ5!Х подачи форма (ок столов, верхние дос)

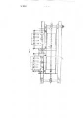
На фиг. 1 изображена схема машины для заготовки дьухслойных упаковок под расфасованпый сахар; на фиг.

2 †в сбоку механизма перекладки форматок; ня фпг. 3 — вид того же мехяги!зма сверху; ня фиг. 4 — схема пронесся перекладки форматок.

Машина вкл)очяет в себя стойки 1, I!3 КОТОРЫХ УКРСПЛЯ10 1 С5! P), IÎHbl С синей H б(;loH бумажными лентами.

Б(!ряб!и!ы ме

Ослу ю б < 11яжиыс ленты мс?1<;1у Вя:1ик!!)<Иl х|схя!!113)13 р ихтОВки <) для Iip5D! Ния

Д?)лсе Вы!!р5!мл(иные г!еит1! бумаги !

00, !и!к(:.ми подаlощсго мсхянизма 4 под<иотс5! под ножи резателыюго меха:)изма 5, которые реж т лепты пя синие и бель:с формятки, поступя10щ1«е и» мех;шизм 6 для перекладки формяток.

Мс

Вьшс:IHcH и виде двух смежно устгя)ов;I(нных ня 11!Виях под<з

1)BÑÏ0Ë0?I<(i!bi li3! РЯЗИЫХ ХР()ВИЯХ, И

МОНТ!1РОВ3НИОй ВДОЛЬ СТОЛОВ ССС!<()HC !. ой л(иты 9, несущей на своих зве)гьях

Гдвоспныс, рясисл!Ожсниь!(На раз)юй высоте, Г-обря -ныс захваты 10 для форматок.

1-1арезянные н()жм!и форматки поступя(ОТ HB CTO Ibl 7 II 8, OTI< < д

СИНИЕ фОР

¹ 99б45 нижним упором захвата, а белыс форматки захватываются со стола верх ним угюром захвата 10, чем и ооеспечивяются перекладка форматок и их взаимное заданное расположение: внизу синяя форматка, а сверху нее — белая (кинематика процесса перекладки форматок показана на фиг, 4).

Бесконе и!ая лепта 9 трянсгюртпруст переложенные формятки в механизм заломки 11, наносящий пя форматкн оттиск будущей линии перегибов, откуда трафареткн поступают в прпспособление 12 для печатания этикеток.

Готовые двухслойныс упаковки укладываются в кассету.

Предмет изобретения

Машина для заготовки двухслойных упаковок под рясфасованный сахаррафинад, снабженная механизмами резки из бумажных лент форматок, перекладки и заломки их и приспособлением для печатания этикеток, о т л ич а ю щ а я с я тем, что, с целью уменьшения габаритных размеров и упрощения конструкции, механизм для перекладки белых и синих форматок выполнен в виде двух, смежно установленных ня линиях пода IH. формяток столов, верхние доски которых расположены ня разных уровнях и вдоль которых монтирована бесконечная цепь, несущая на своих звенья:; сдвоенные, также разной высоз ы, Г-образные захваты для форматок. l

) Ab 99646 с; № Кб46 № 99646