Иллюстрации к патенту
97356
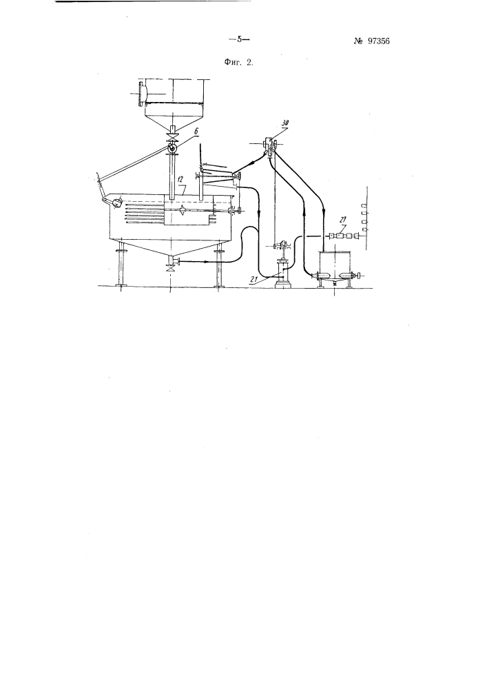
Способ непрерывного осахаривания крахмалистой массы и устройство для осуществления способа